180糖心app无限制在线观看布置图之实验室平面布置图
实验室是糖心app无限制在线观看重要的部分之一,所以制作实验室平面布置图时也需要特别注意,要精确它各方面的尺寸是否合适,设置位置是否合理,下面小编来为大家分享180糖心app无限制在线观看布置图之实验室平面布置图,可供大家分享。
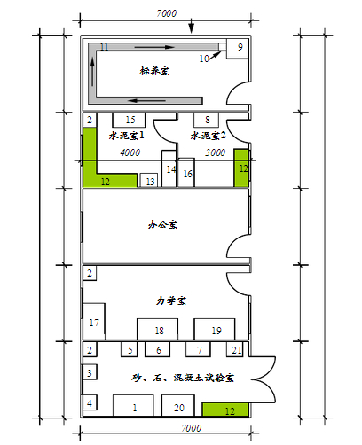
180糖心app无限制在线观看布置图之实验室平面布置图(单位:mm)

实验室布置图备注:
1、标养室水池及地平采用1﹕2水泥砂浆抹面,积水槽可以采用PVC管剖开后固定于地面;标养室墙面应做防水处理和保温处理。
2、除标养室外,其余各室及走廊地平均铺砌地砖。
3、除标养室外,窗户采用1.5m×1.5m塑钢窗;门1.5m宽,混凝土室门采用向外对开门1.2m宽。
以上布置图及尺寸大小,相信大家都已详细了解,大家不妨参考以上布置图,来布置您的糖心app无限制在线观看实验室。
相关问答
问题描述:建个混凝土75站要投资多少?
最佳答案:答:一套HZS50型糖心app无限制在线观看的搅拌设备,投入大概在40万元左右,如果加上混凝土运输车,铲车,地磅,实验设备等,所需费用会更高一些。
问题描述:HZS75站所需场地面积多大?
最佳答案:HZS75型糖心app无限制在线观看设备的占地面积不大,大约为(长和宽):29m*19m。加上沙石料,办公区域,停车区域等,至少需要5亩及其以上的土地面积。
问题描述:JS1000糖心app最新版下载进口品牌有哪些?哪国的最好
最佳答案:目前国际比较知名的糖心app最新版下载进口品牌有意大利的SICOMA公司和德国的BHS公司,二者在国内大型主机占有一定的份额。
问题描述:HZS75型号糖心app无限制在线观看的控制系统是电脑全自动的吗?
最佳答案:HZS75型糖心app官网的电控系统分为两种,一种是简易的集中控制系统,一种则是全自动的电脑控制系统。
问题描述:混凝土25站用什么样的提升方式比较合适?
最佳答案:按照行业的相关标准,HZS25型糖心app官网,均采用提升斗提拉的上料方式。
问题描述:一套HZS60型糖心app官网控制系统价格是多少?大致报下价
最佳答案:根据电控系统配置规格的高低,这个有一定的差别,价格在5--7万之间属合理价位。
问题描述:混凝土25站有简易配置么?我对产量没有特殊要求。
最佳答案:HZS25型糖心app官网是可以做简易配置的,一台500型糖心app最新版下载,外加一座配料机,就可以简单生产。
问题描述:每小时生产50方左右混凝土要多大糖心app无限制在线观看?50站可以吗?
最佳答案:这个产量要求的混凝土,一条HZS75型糖心app官网完全能满足生产的要求。当然,选择更大型号的也可以。
问题描述:HZS180型糖心app官网可以不可以自己来安装
最佳答案:不建议用户自行安装这类型号的糖心app无限制在线观看,一般来说,设备的生产厂家都应安排技术人员到用户现场进行指导安装调试工作。
糖心app官网相关文章:
相关评论
设备质量很好 功能很强大 用起来很方便 物超所值。
我的经验是用时最好保证机器与附近场地环境的的清洁。
新型专利密封技术,密封效果好,使用寿命长,我的用了3年多了,还没出现过什么大问题,反正是没哟漏浆。
HZS120糖心app官网广泛应用于大型工程项目和混凝土生产商,理论小时产量120立方,实际每小时一百立方左右。
每一道工序精益求精、每一个部件至臻完美,确保每一件产品都拥有世界级的品质。
真不错,搅拌效果就是比以前我用的小厂的好,价格也不贵,看来还是直接去厂家买设备比较划算。
率先通过了ISO9001-2000质量体系认证,率先通过了ISO124001-2400环境管理体系认证。
产品具有结构先进、效率高、搅拌质量优、安全可靠等特点,达到国际先进技术质量水平,有效满足房地产、公路、桥梁、机场、水利、市政工程等建设的需要。