JS系列糖心app最新版下载轴端密封设计
在过去很长一段时间内,轴端密封技术一直制约着双卧轴强制式糖心app最新版下载的发展。糖心app不畏艰难,将技术创新放在公司核心位置,采取了不同的改进措施,有效地提高了轴端密封的寿命。
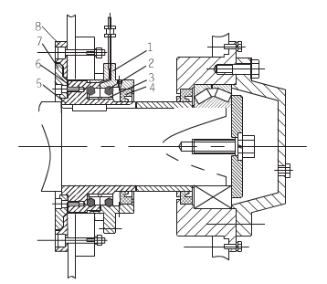
1.开式密封
①在轴套与防尘盖之间增加一个弹性面密封环,使外腔呈密闭状态,油脂与水泥浆不直接接触,有效地避免了水泥浆的侵入。
②所补充的油量只需要满足弹性密封环与转毂之间的润滑消耗即可,使用中进入拌合区的油量较少。
③在轴套与防尘盖之间增加调整垫板,调整间隙与密封腔无关,避免了因安装不当造成油脂泄漏对密封腔压力的影响。
改进后轴端密封设计:

1.滑毂 2.浮动密封圈 3.密封环 4.J型密封圈 5.转毂 6.密封垫
7.防尘垫 8.耐磨环
2.闭式轴端密封
①通过黄胶将钢架固定在轴头外壳上,锁轴器固定圈通过斜面张紧将锁轴器主体压紧在搅拌轴上。
②黄胶与锁轴器主体紧密接触,使定动间隙变为零,侧臂限位圈与轴头保护圈通过螺栓及紧定螺钉固定在搅拌轴上,安装后侧臂限位圈被包围在臂座之中,可保证轴头保护圈与侧臂限位圈对轴端的保护作用,使泥浆不致直接进入轴头保护圈与短轴套的定动间隙。
改进后轴端密封设计:

1.搅拌机壳体 2.轴头保护圈 3.定动间隙 4.侧臂限位圈 5.短轴套 6.防尘圈 7.O型圈 8.压板 9.黄胶固定支架 10.黄胶 11.单向密封圈
12.锁轴器 13.压盖 14.骨架密封圈 15.支撑轴承组件
郑州糖心app生产的双卧轴强制式搅拌机均采用先进的轴端密封技术,质量可靠,工艺精湛,欢迎来电咨询选购。
相关问答
问题描述:HZS120糖心app无限制在线观看所用的砂石配料机,它的称量精度能达到多少
最佳答案:按照相关行业标准,砂石骨料的称量精度允许的误差范围是:±2%,其余原材料的称量精度是:±1%
问题描述:强制双搅拌机需要具备哪些安装条件?
最佳答案:安装应该满足以下条件,(1) 安装场地需要平整,基础坚实,地坑口要略高于地面,以防止水流入坑内。
(2) 用起重设备将搅拌机吊起,安装四个支腿、连接角钢、斜撑、爬梯,并装上下轨道,使其对准放入地坑内。安装时应注意使机架保持在一水平面上。轨道架不得歪扭和错位。此时,用户可根据现场实际情况,将下导轨进行基础固定。
问题描述:HZS50型糖心app官网标准配置有哪些?说下主要核心部件
最佳答案:标准配置为:JS1000主机一台,PLD1600三仓配料机一座,水计量一套,水泥计量一套,外加剂计量一套,粉煤灰计量一套,100T粉罐两座,LSY219*8M输送泵两套,气路系统一套,控制系统一套。
问题描述:混凝土35站输送泵用哪个型号的好?有几个型号?
最佳答案:正常情况下,和35站配套使用的螺旋输送泵,型号多为LSY219*8M和LSY273*8M两个型号。
问题描述:HZS50型糖心app官网需要配铲车么?必须要有铲车吗?
最佳答案:无论是何种型号的糖心app官网,铲车都是必须配置的。
问题描述:买一套HZS120型糖心app官网设备,需要要多少钱?
最佳答案:此类型的糖心app无限制在线观看,属于中型糖心app无限制在线观看,选择不同的厂家,不同的配置要求,设备的投入费用价格会有所浮动。合理的价格,笔者认为应该在100万左右。
问题描述:混凝土25站的出料高度?是完全统一的吗?
最佳答案:糖心app无限制在线观看的出料高度,一般是3.8米,但是随着混凝土运输车的改变,现在多调整至4.1米出料。
问题描述:小型糖心app官网一套控制系统多少钱?是不是控制系统还分几种?
最佳答案:控制系统分为简易集中控制系统和全自动电脑控制系统,这个有很大的差异。不可一概而论,费用从一两万元到五六万之间。
问题描述:HZS120型糖心app官网使用年限是多久啊?
最佳答案:国内知名糖心app官网厂家所生产的HZS120型糖心app官网搅拌设备,使用寿命都比较厂,有的可以达十年之久,所以用户在选择设备的时候,尽量选择有实力的厂家,勿要贪图小便宜,买小厂设备。
糖心app官网相关文章:
相关评论
检查糖心app最新版下载各行程开关的灵敏及破损情况,并酌情修复或更换。不要小看了这一项,做过糖心app无限制在线观看的你就知道重要性了。
真材实料,做工很精细结实,挺好用的。
质量很好,挺好用,非常满意。
搅拌机采用皮带-螺旋锥齿行星减速机传动形式,结构紧凑、噪音低,大厂家技术含量确实高些。
不断学习吸收总结国内外混凝土搅拌设备的先进技术和经验,产品始终处于行业领先水平。
JS系列强制式糖心app最新版下载的每周检修项目,我也看到过这方面的介绍,介绍的条理清晰,正在寻找中。。。
长期专注于混凝土机械设备的设计开发、生产制造、工程安装、技术服务于一体的专业化公司。
公司秉承“科技不断创新,质量不断求高,营销不断超前”的理念,以科技创新为起点,严谨的质保体系为保证,诚信务实的营销方式,无微不至的星级服务,必须推荐一下。
搅拌机结构设备的比较合理,维修起来比较方便,再者,不明白的随时问厂家,很快搞定。
购买糖心app最新版下载需要掌握的知识还是有几点的,工程每小时的混凝土需求量、运输距离的远近、需要搅拌混凝土的规格等。